Lugao tarafından üretilen GW13 serisi transformatör nötr nokta aralığı topraklama koruma cihazı, transformatör nötr noktasının yalıtımını yıldırım aşırı geriliminden, anahtarlama aşırı geriliminden ve güç frekansı (geçici) aşırı gerilimden korumak için tasarlanmıştır. Lugao, profesyonel üretim ekipmanlarına ve zengin ihracat tecrübesine sahiptir ve tutulan envanter hızlı bir şekilde teslim edilebilmektedir.
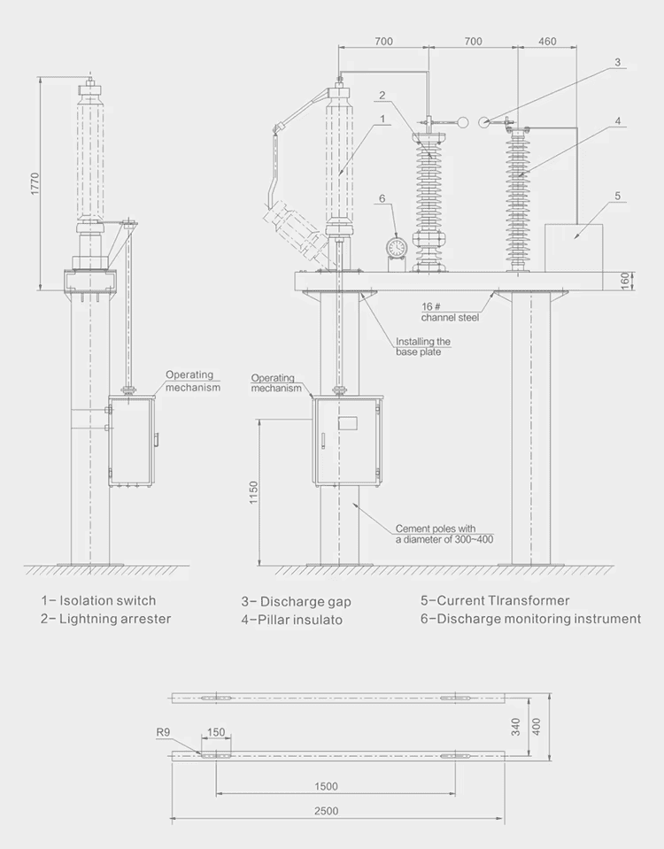
Lugao'nun GW13 serisi transformatör nötr nokta aşırı gerilim koruyucuları öncelikle 110kV ve 220kV güç transformatörlerinin nötr nokta devrelerinde kullanılır. Transformatörün nötr nokta yalıtımını aşırı gerilim hasarından korurlar ve transformatörün topraklanmış ve topraklanmamış nötr nokta çalışma modları arasında geçiş yapmasını sağlarlar. Yıldırıma, güç frekansına ve anahtarlama aşırı gerilimlerine karşı eş zamanlı koruma gerektiğinde, koruma için bir boşluk ve tutucu paralel olarak bağlanabilir. GW13 serisi nötr nokta aşırı gerilim koruyucusu, bir ayırıcıyı, çinko oksit tutucuyu, deşarj aralığını ve akım transformatörünü birleştiren eksiksiz bir settir. Yüksek termal kapasiteye ve mükemmel korumaya, esnek konfigürasyonlara ve kullanım kolaylığına sahiptir. Kullanıcı ihtiyaçlarını karşılamak için saf boşluk tasarımı veya ayırıcı ve boşaltma boşluğu kombinasyonu seçilebilir.
GW13 koruma Cihazı Teknik Özellikleri
| lt |
Birim |
Argüman |
||
| Ürün modeli |
|
Lugao-gw13-110 |
Lugao-gw13-220 |
|
| Nominal gerilim |
KV |
110 | 220 | |
| Trafo nötr dayanım gerilimi |
Yıldırım dolu ve kesilmeye dayanma gerilimi (tepe) |
KV |
250 | 400 |
| 1 dk güç frekansı (etkili değer) |
KV |
95 | 200 | |
| Nötr izolasyon anahtarı |
Nominal akım |
A | 630 | 630 |
| Çalışma mekanizması |
|
CS14G(manuel) veya CJ2(elektrikli) |
||
| Çinko oksit tutucu |
Nominal gerilim (RMS) |
KV |
72 | 144 |
| Sürekli Çalışma Gerilimi |
KV |
58 | 116 | |
| DC 1mA referans voltajı |
KV |
103 | 205 | |
| Yıldırım darbe akımının artık voltajı |
KV |
186 | 320 | |
| Deşarj boşluğu |
Boşluk elektrot mesafe aralığı |
mm | 90-150 | 220-320 |
| Güç frekansı deşarj voltajı aralığı |
KV |
50-83 | 100-166 | |
| 1,2/50us darbe deşarj gerilimi |
KV |
120-190 | 250-320 | |
| Akım trafosu |
Tip |
|
Epoksi reçine dökülmüş tamamen kapalı sütun tipi 10kv |
|
| Dönüşüm oranı |
|
100/5,200/5,300/5,40015,50015,600/5 |
||
